




Alege dintre 2 magazine cu prețuri de la 2.559 RON până la 2.602 RON:
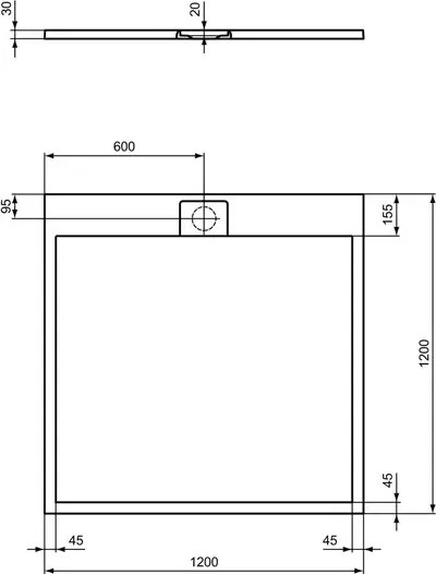
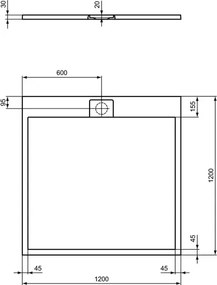
Intrand in gama sa mai larga, caditele de dus i.life Ultra Flat S ofera un design contemporan si elegant, aducand un aspect subtil, dar distinctiv oricarei bai. Disponibila in patru finisaje moderne - alb pur, gri asfaltic, nisipiu si negru intens, colectia este disponibila in 27 de dimensiuni diferite, in forme patrate si dreptunghiulare. Caditele de dus i.life Ultra Flat S, fabricate din rasina cu textura de piatra, prezinta un finisaj robust cu un strat de gel, conferind suprafetei un aspect de piatra de inalta calitate, dar si proprietati esentiale antialunecare. Cu o grosime de doar 30 mm si cu un sifon complet integrat, aceste cadite de dus reprezinta acel detaliu de finalizare perfect pentru orice spatiu, completand stilul de design coerent cu o nota de lux. Specificatii tehnice Cadita de dus patrata Ideal Standard i.life Ultra Flat S alb pur 120x120 cm: Producator: Ideal Standard Colectia: i.life Ultra Flat S Tip produs: cadita pentru dus Tip montare: pe pardoseala incastrat Material: compozit Culoare: alb pur Scurgere: laterala Forma: patrata Dimensiuni: 1200x1200xH30 mm Rezistenta la detergent si la lumina Cea mai inalta clasa antialunecare C Cadita de dus se poate decupa Capac decorativ pentru sifon in aceeasi culoare si material - inclus Ultrasubtire - 30 mm din material compozit bazat pe marmura si rasina Sistem de scurgere O90 mm, fara capac, parti vizibile gri K936367 - se achizitioneaza separat Optional picioare sustinere universale cu benzi dublu adezive (la dimensiuni de 1000 mm si peste, sunt necesare 2 bucati) K936467 - se achizitioneaza separat
| Producător | Ideal Standard |
|---|

Formă sfert de cerc
Disponibil în 3 e-shop-uri

Pătrată

80×80 cm
Disponibil în 4 e-shop-uri

Dreptunghiulară

Formă sfert de cerc
Disponibil în 4 e-shop-uri

80×80 cm, pătrată

80×120 cm, din acril
Disponibil în 3 e-shop-uri

80×80 cm
Disponibil în 4 e-shop-uri

Dreptunghiulară

Dreptunghiulară

Disponibil în 3 e-shop-uri

Pătrată


Dreptunghiulară, din acril
Disponibil în 5 e-shop-uri

Dreptunghiulară
Disponibil în 4 e-shop-uri

Dreptunghiulară
Disponibil în 4 e-shop-uri



Formă sfert de cerc, din acril

Disponibil în 3 e-shop-uri


80×120 cm, dreptunghiulară
Disponibil în 2 e-shop-uri

Dreptunghiulară, din acril
Disponibil în 2 e-shop-uri

Din acril

Dreptunghiulară
Disponibil în 2 e-shop-uri

Dreptunghiulară
Disponibil în 4 e-shop-uri

Disponibil în 4 e-shop-uri

Dreptunghiulară, din acril

Dreptunghiulară

Dreptunghiulară, din acril
Disponibil în 2 e-shop-uri

Din acril

Din acril

Disponibil în 2 e-shop-uri

Disponibil în 3 e-shop-uri

Disponibil în 4 e-shop-uri

Disponibil în 5 e-shop-uri

Disponibil în 3 e-shop-uri

Disponibil în 2 e-shop-uri

Disponibil în 3 e-shop-uri

Disponibil în 5 e-shop-uri

Disponibil în 6 e-shop-uri

Cu geam transparent

Cu geam transparent

Cu geam transparent

Cu geam transparent

Cu geam transparent

Cu geam transparent

Cu geam transparent

Cu geam transparent

Disponibil în 3 e-shop-uri